Swartz Bay Sewage Holding Tank Sulphide Control
2021-2022 | Swartz Bay, BC
The sewage holding tank at the Swatz Bay ferry terminal was plagued with operational challenges. The washdown system had corroded to the point of disfunction but couldn’t be replaced without confined space entry. In addition, the sewage in the tank had sulphide concentrations that exceeded regulatory limits. Lastly, it stank!
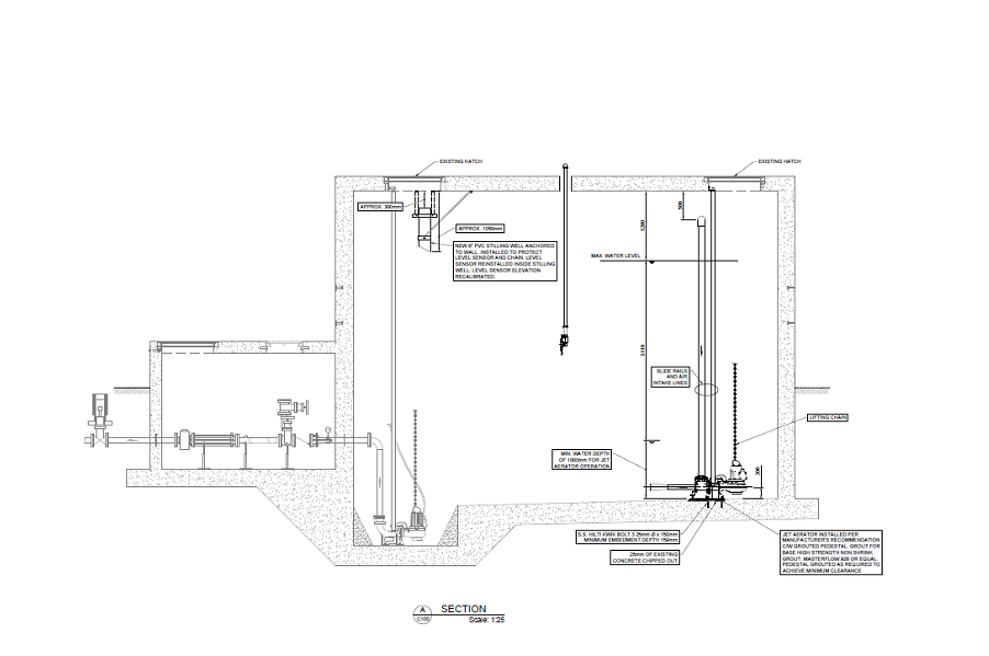
BC Ferries engaged McElhanney to design improved washdown and aeration systems. The new washdown system featured a removable nozzle at the center of the tank that sprayed the entire surface of the tank. When not in use, the nozzle could be removed to increase its lifespan, eliminate cross contamination risk for the potable water system, and allow for easy maintenance, cleaning, and replacement.
McElhanney also designed a new aeration system to reduce sulphides to well below the regulatory limit. The new system also mixed the sewage to eliminate the previous system’s dead zones, where stagnant sewage was becoming anerobic. This was all done without raising the Total Suspended Solids levels above regulatory limits.
McElhanney’s team of structural engineers played an important role in this project. The team analyzed the aeration system’s roof slab in order to design a hatch to access the aerators and to identify a suitable location for the installation of an odour control unit.
McElhanney is proud to be part of creating a safer and more cost-effective work environment for BC Ferries.
McElhanney provided:
- Civil, structural, and mechanical engineering
- Concept design
- Detailed design
- Tender and construction services






